- Home
- Content Library
- Family Dentistry at the Lakes – Alexandria, Louisiana
Family Dentistry at the Lakes – Alexandria, Louisiana
Risk or reward?
That was the crossroads that Dr. Wilton Guillory, Jr. and Dr. David M. Carlton III faced. Each month, 50-60 new patients were walking in the door of Family Dentistry at the Lakes in Alexandria, Louisiana, and the office was simply out of space. The waiting room was crowded on busy days and there was just a small, single check out for patients. Yet, the economic downturn made it a risky time to consider any type of expansion or new construction, even though it appeared to be the logical next step for the practice. What did the Doctors decide to do?
The doctors took a calculated risk and moved ahead with the construction of a new building, knowing that lower interest rates and construction costs made it an opportune time to build. Dr. Courtney Richter joined in the discussions, and the three doctors decided to merge into one practice and move forward with their vision.
They wanted a new office with: 1) More square footage and a layout that facilitated high-quality care. It also needed to accommodate the future growth to a fourthdoctor. 2) Latest technology to give patients an exceptional experience and make the practice more efficient 3) An upscale yet comfortable interior that matched the level of care given to patients.
“Wow” Factor
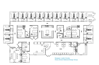
Construction was completed in November 2009, and the finished office is nothing short of “wow.” It is 6,300 square feet and offers plenty of space to have four doctors practicing full time. Yes, four… even before construction was completed, Dr. Aaron Mangum joined the trio, making the added square footage an instant return on investment!
The “wow” factor begins even before you walk inside. The exterior of the building, with its rich architecture, inviting covered entry, double doors with transom, potted plants, and large windows sets the stage for the service patients receive inside.
“The interior was designed to have a comfortable, “home-like” feeling,” said Dr. Richter. “We paid special attention to the lighting throughout the building, as research has shown that lighting can affect the mood of our guests. We eliminated all commercial-type lighting features and incorporated canned, sconce, and pendant lighting fixtures where possible. The ambiance is now that of a home rather than a clinic.”
Even the floors were carefully chosen – the environmentally friendly bamboo floors don’t just look stunning with the blend of light and dark graining: they also absorb noise. The operatories are painted in earth-tone colors to calm and relax and are outfitted with Belmont cabinetry and chairs, giving an upscale look and storage while also offering ergonomic benefits to both the doctors and patients. The hygiene rooms are painted a crisp and clean oyster blue. Pulling all the colors and design elements together is the original canvas-wrapped photography of Dr. Guillory, which is displayed throughout the waiting room, halls and offices.
The space houses 13 operatories, all of which feature LCD monitors for patients’ use, an in-house dental lab, five centrally-located hygiene ops, a centrally located hygiene coordinator office, a consult office, spacious lounge area, and three privacy checkouts. A large and welcoming waiting area greets patients with a feeling that can only be described as southern hospitality – warm, comfortable, and elegant.
“We visited other state-of-the-art multidoctor practices and drew a design using what we felt were the best qualities from those offices with what we felt was the most efficient patient and team flow for our type of practice,” Dr. Carlton explained.
We located and purchased a great piece of property in a growing area of our community and hired a local architect to help with the building process. We then met with our Field Sales Consultant, Scott Rogers who immediately introduced us to Equipment Sales Specialists John Pruitt and Chris Bratton. From there, we never looked back.”
The Move to Digital
From the initial planning stages all the way through the final construction, Rogers, Pruitt, and Bratton were closely involved with essential aspects of the project. “Henry Schein assisted with plan review and plumbing, electrical and medical gas drawings for the operatories, sterilization, and dental lab. They also assisted with onsite monitoring of the construction and were instrumental in training for the new equipment,” noted Dr. Guillory.
“The interior was designed to have a comfortable “home-like” feeling,” said Dr. Richter.
The new equipment was perhaps the biggest change for the doctors and their staff. In the old office, they didn’t use digital technology; in the new office, they’ve embraced it with the purchase of Dentrix practice management software, which has automated many of their administrative duties, allowing patients to be scheduled, billed, and checked out more quickly.
“The office used film before. It was time-consuming and the chemicals could be messy,” said Rogers. “We looked at what the dollar cost savings would be, and it made sense for them to move to digital imaging.” The Gendex 8500 Digital Pan and an Aribex Nomad X-ray gave the office higher image quality, instant images for faster review and treatment plan discussion, and seamless integration.
Positive, Motivating Work Environment
The new work environment seems to agree with the staff, made up of three hygienists, six assistants, four front-office employees, and an office manager and hygiene coordinator.
“We cannot say enough about what this has done for the team,” said Dr. Guillory. “All the team members feel very fortunate to work in such a great environment, and several have actually improved their patient interaction. New-patient referrals are very high, and the compliments make us feel great about what we have built and can offer to our community. The relationships created early on and the enthusiasm that the team from Henry Schein portrayed made us feel confident that we would be not only satisfied, but also impressed with the final outcome.”
Featured Equipment
Aribex Nomad X-ray
Belmont E-Style Cabinetry with Cambria
Belmont Quolis Chairs
Brewer Stools
Dentrix Practice Management Software
DEXIS Sensors
Gendex 8500 Digital Pan
KaVo Quatrocare
Midmark M11 Sterilizer
Pelton & Crane Vista Pure
Pelton & Crane Helios Track Lights
Ramvac Bulldog Vacuum
SciCan Statim 5000









