- Home
- Content Library
- Gearhart Dentistry Gearhart, Oregon, Dr. Stephanie White
Gearhart Dentistry Gearhart, Oregon, Dr. Stephanie White
The property that housed the shell of the practice and the family residence was purchased in 2007. Dr. White had taken ownership of her already existing business 5 years prior, providing general dentistry services for her patients.
"Henry Schein helped with the layout and blueprints; gave us tours of other offices to get ideas for design; and provided information on their products."
Construction began in January 2010 in the new location, which opened in September of the same year. "I would be able to provide dental services in a location that I owned while being within close proximity to my home," notes Dr. White. "As a mother, small business owner, and dentist, this relocation provided numerous benefits on many levels, [including highway frontage that increases the practice's visibility]."
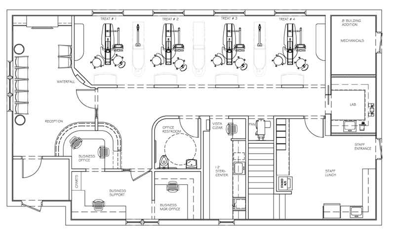
The new building's 1,750-square-foot downstairs space houses the reception area and 4 operatories. Its 400-square-foot second level is used for the Doctor's personal office and storage. "We already had Dentrix and DEXIS at the old office," notes Dr. White. "Henry Schein helped with the layout and blueprints; gave us tours of other offices to get ideas for design; and provided information on their products." TechCentral, part of Henry Schein, installed all the computers and phone systems in the office as well.
Come on in and enjoy the beautiful reception area; you'll relax to the gentle murmur of a waterfall and bask in the warmth of a fireplace while choosing a refreshment of choice as you await your treatment. The walls showcase custom oil paintings and artwork done by Dr. White's mother Laurie Kristovich. Decorative accents include Brazilian walnut floors; quartz countertops; custom, hand-blown light fixtures; and comfy leather seating. "I believe the new office is more relaxing and less stressful to my staff as well…it allows them to work as a strong team in a more efficient manner, and enjoy a greater level of communication and productivity, which has increased by about 25% over last year. We have had a 50% increase in new patients in just the last 3 months and there have been a lot of walk-ins, roughly one to two a week, wanting to check out the new place and inquire about becoming patients with our office."
Gearhart Dentistry's office designer was Henry Schein National Design Group's Genevieve Cicero. Equipment Sales Specialist Mike Corcoran worked with Field Sales Consultant Jaime Phifer, supporting the project in achieving all its technical and layout goals. "Dr. White has better ergonomics and enhanced functionality now. The use of the narrow-back chair and delivery unit that allows instruments to be easily accessed gives her a more streamlined work area…and a more stress-free day," comments Mike Corcoran. "The office's general atmosphere has the unique ability to increase overall comfort for the patients and the staff as well as helping the staff to work more efficiently because of its well-organized spaces."
"My business being so close to my home is such a wonderful thing," remarks Dr. White. "There are many matters that need to be handled after patient treatment hours, which means time away from loved ones. Since I am close to home, I can bring my two-year old over to my upstairs office where she can be with me in a comfy, clean, and child-friendly environment. …Other times, I can literally run over to the office while she naps or sleeps—and work—guilt-free."
"I believe the new office is more relaxing and less stressful to my staff as well…it allows them to work as a strong team in a more efficient manner, allowing for a greater level of productivity."
Through the successful completion of her new office, Dr. White will better realize her business goals and be able to fulfill her personal philosophy of patient care. With enviable new technologies and a perfectly configured space, the Doctor can confidently look forward to supporting an increase in her burgeoning client base and comfortably meeting the demands of her personal life as well.
[raw]
Designed by: Genevieve Cicero, Henry Schein National Design Group
[/raw]
Featured Equipment:
Dentrix Practice Management Software DEXIS Platinum Digital Sensors Digital Doc Icon IntraOral Camera Crown Seating Operatory Stools Guru Patient Education System Midmark Assistant Stools Pelton & Crane 3000 Chairs and Delivery System Pelton & Crane Helios Light Pelton & Crane Cabinetry







