- Home
- Content Library
- Johnson Family Dental, Santa Barbara, California
Johnson Family Dental, Santa Barbara, California
Dr. Steven Johnson
Johnson Family Dental’s continuously strong growth had propelled it toward full capacity at its former facility. The time had come to evaluate future needs and develop a plan for keeping up with its diverse activities and specialized services.
The availability of retail space at reduced rates because of the recent economic downturn proved beneficial for building a new facility. The focus was on design ergonomics that would enable the maximum use of space while saving footsteps during the day. Better integration and standardization of equipment and technologies was also a prime consideration. With constantly accelerating growth, a well-organized and efficient setup for delivering care was a necessity. “In the old office, small hallways, a patchwork of different equipment and chairs worked against our productivity,” comments Dr. Johnson.
“Patients and employees love the feel and openness of the new office — and often remark that they would like to work here,” comments Dr. Johnson.
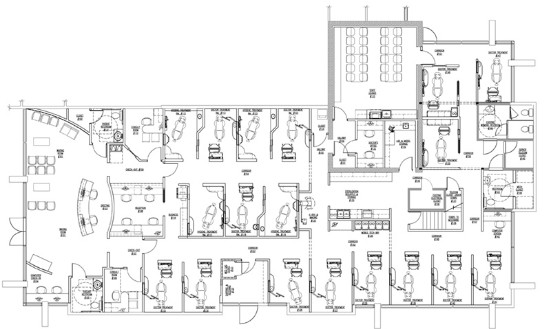
Johnson Family Dental can now work confidently toward achieving its practice goals in a 5,390-sq.-ft. space that houses 18 operatories (11 doctor; 7 hygiene). There is ample room for patient treatment, a welcoming reception area, a large employee lounge that doubles as a center for employee meetings, and equipment and technology upgrades that are vital to its many specialized services.
“Henry Schein Dental’s team accommodated our every need,” points out Doctor Johnson. “We have built a good trust relationship with them. Our sterilization, laboratory, and operatory equipment are through Henry Schein Dental. We also chose Dentrix practice-management software through the Privileges program; and use TechCentral support for computer integration and maintenance.”
Mellow earth tones are prevalent throughout the new facility. The main focus of the reception space is a 9-foot wall made of stacked stone that is native to the area. Its characteristic colors blend beautifully with the décor and make an outstanding accent statement in the room. A stylized, barrel-shaped ceiling in the main hallway adds additional architectural detail.
“Patients and employees love the feel and openness of the new office—and often remark that they would like to work here,” comments Dr. Johnson.
“Patients and employees love the feel and openness of the new office—and often remark that they would like to work here,” comments Dr. Johnson. “Employees feel they can better serve the patients in the efficient workspace. New patients have doubled and we have already experienced a 20% increase in reappointments; referrals continue to rise—we are now at 40%–50%. The renovation has allowed us to offer endo treatment—we have a specialist coming in weekly—and we hold an implant seminar monthly. Our equipment upgrades included the E4D Dentist system, which gives us the ability to provide same-day crowns and our i-CAT cone beam X-ray makes a wide range of diagnostics possible. And, we are looking forward to starting a dental assistant training school in 2012!”
Left to right: Hugh Hall, Field Sales Consultant;
Mike Mathews, Equipment Service Technician;
Matt Scott, Equipment Sales Specialist;
Gary Rzepka, Digital Technology Specialist;
Dr. Steven G. Johnson; Maritza Alford, Regional Manager; Frank Hovey, Office Manager






